Casa indipendente in affitto

Macello, Regione Faule - Faule
€ 500 / mese
6 locali 6 locali
190 Mq 190 Mq
1 bagno 1 bagno

Casa indipendente in affitto

Macello, Regione Faule - Faule

Descrizione annuncio

Nel comune di Macello, a pochi chilometri da Pinerolo, proponiamo in affitto una casa padronale di campagna nello stato originale, completa di giardino privato.
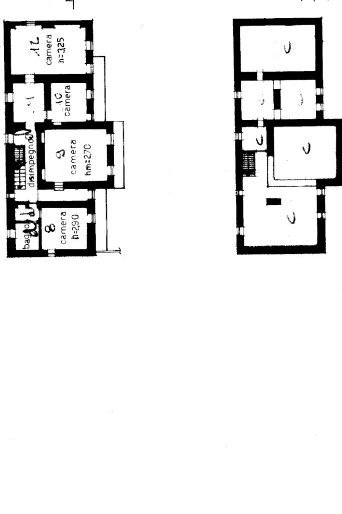
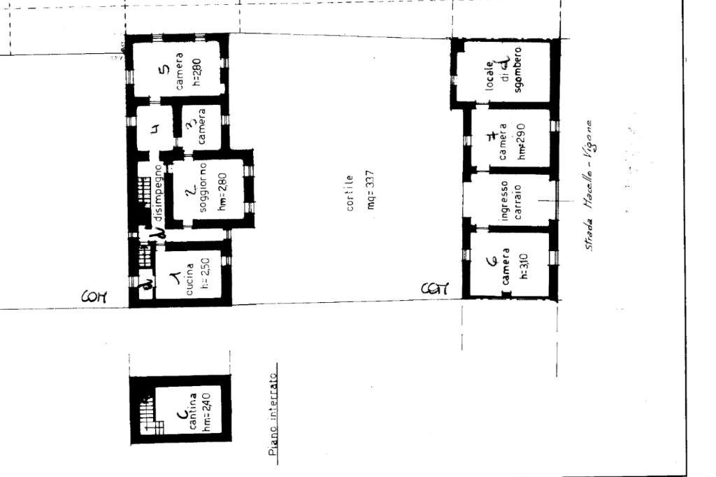
L’immobile si sviluppa su più livelli: al piano terra si trovano l’ingresso, un ampio soggiorno, una prima camera da letto e una cucina abitabile.

Al primo piano si accede a una spaziosa camera matrimoniale con balcone, un bagno dotato sia di vasca che di box doccia, e altre tre camere attualmente adibite a locali di deposito.

Il piano seminterrato ospita una cantina di generose dimensioni. Sul cortile si affacciano due grandi tavernette, di cui una utilizzata per lo stoccaggio della legna e l’altra come deposito per attrezzi e mezzi da lavoro.

Il riscaldamento è alimentato da stufa a legna, mentre acqua calda e cucina funzionano con bombola a GAS.

Si tratta di una soluzione ideale per chi desidera una casa indipendente immersa nel verde, senza rinunciare alla vicinanza al centro del paese.

Si affitta solo a persone referenziate con redditi dimostrabili. Si richiede inoltre agli inquilini di stipulare una FIDEIUSSIONE ASSICURATIVA e una POLIZZA PER SCOPPIO E INCENDIO.
LIBERO DA GENNAIO 2026 VUOTA DA MOBILI

Mostra tutto

Nelle vicinanze

Farmacia Farmacia
Farmacia
1,9 Km
Mostra tutto

Caratteristiche

Rif.:
61089560
Piano:
Terra con giardino
Balconi:
1
Camere da letto:
6
Arredamento:
Assente
Condizionamento:
Assente
Mostra tutto
Prezzo Prezzo
€ 500 / mese
Spese annue Spese annue
€ 0

Classe Energetica

G
G
G
G
G
G
G
G
G
EP globale non rinnovabile:
449.95 kW h/m² anno
EP globale rinnovabile:
8.95 kW h/m² anno
EP invernale del fabbricato:
EP estiva del fabbricato:
Anno di costruzione:
1800
Riscaldamento:
Autonomo
Tipo impianto:
A stufa
Tipo alimentazione:
Altro

Ti interessa visionare l'immobile?

Fissa un appuntamento  Fissa un appuntamento

Richiedi informazioni

Clicca su Leggi per aprire l'informativa
* Questi campi sono obbligatori
Affiliato
Studio Pinerolese Sas
Corso Torino, 280 10064 Pinerolo (TO)

Il nostro staff


  • Daniela Richiardone
    Affiliata

  • Francesca Cecere
    Coordinatrice

  • Vincenzo Pio D'Eredità
    Affiliato
Corso Torino, 280 10064 Pinerolo (TO)
Zona: Pinerolo-San Lazzaro-Macine-Serena/Olimpica-Riva-Baudenasca-Buriasco-Macello
Mostra su mappa
Orari: Dal Lunedì al Venerdì dalle 09.00 alle 12.30 e dalle 14.30 alle 19.00; Sabato orario continuato dalle 9.00 alle 17.00
Affiliato
Studio Pinerolese Sas
Corso Torino, 280 10064 Pinerolo (TO)

2025 Tecnocasa Franchising S.p.A. - P. IVA 08365160152 - Via Monte Bianco 60/A 20089 Rozzano (MI). Ogni agenzia ha un proprio titolare ed è autonoma. Privacy policy | Policy utilizzo | Cookie policy