5 locali in vendita

Pinerolo, Via podgora - Olimpica
€ 96.000
5 locali 5 locali
110 Mq 110 Mq
1 bagno 1 bagno

5 locali in vendita

Pinerolo, Via podgora - Olimpica

Descrizione annuncio

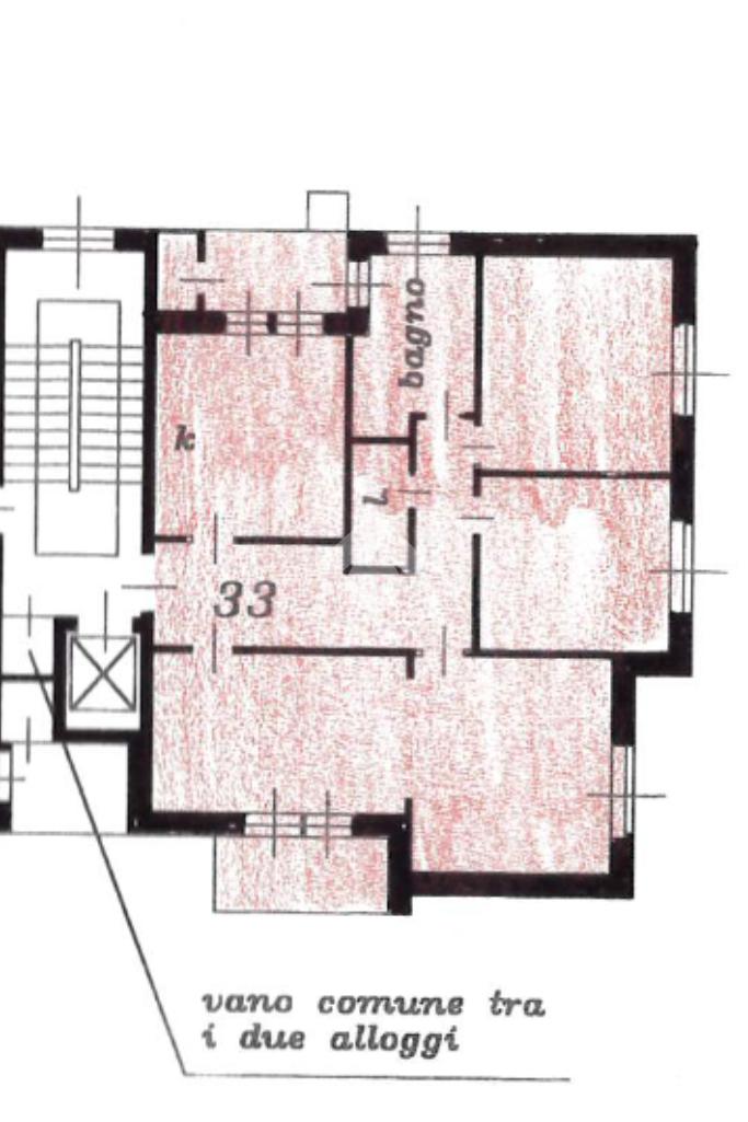
In posizione strategica, comoda ai servizi di Pinerolo, proponiamo in vendita un ampio appartamento di cinque locali, situato al secondo piano di uno stabile dotato di ascensore.
L’ingresso si apre su un comodo corridoio che conduce ai vari ambienti della casa. La cucina è abitabile e affaccia su un balcone interno cortile, dove si trova anche un pratico ripostiglio con boiler per l’acqua calda e l’allaccio al gas per la cucina.
Il soggiorno doppio, molto luminoso, ha accesso a un secondo balcone. Grazie alla sua ampia metratura, offre la possibilità di ricavare una terza camera da letto o uno studio, adattandosi facilmente alle esigenze abitative.
L'immobile dispone inoltre di un bagno finestrato con box doccia recentemente sostituito, una lavanderia e due camere da letto: una matrimoniale e una singola.
Il riscaldamento è centralizzato con termo valvole. Gli infissi sono in alluminio con doppo vetro, garantendo un buon isolamento termico e acustico.
Completano la proprietà un posto auto all’interno del cortile condominiale e una cantina di pertinenza.

Mostra tutto

Nelle vicinanze

Trasporto pubblico Trasporto pubblico
Pinerolo (Bin 5 per Torre P.)
Pinerolo (Bin 5 per Torre P.)
580 m
Pinerolo
Pinerolo
710 m
Pinerolo (San Lazzaro)
Pinerolo (San Lazzaro)
640 m
Pinerolo (bv. Carmagnola)
Pinerolo (bv. Carmagnola)
650 m
stazione di Pinerolo Olimpica
stazione di Pinerolo Olimpica
350 m
Ricariche auto elettriche Ricariche auto elettriche
LIDL Pinerolo
980 m
Pinerolo Via Saluzzo | EnelX
1,7 Km
Pinerolo Via Saluzzo | SEMM
1,7 Km
Scuole Scuole
Scuole
150 m
IPSIA Porro
360 m
ITIS Porro
390 m
Istituto di Istruzione Superiore Michele Buniva
460 m
Liceo Scientifico Marie Curie
470 m
Farmacia Farmacia
Farmacia Nuova
140 m
Farmacia San Lazzaro
750 m
Farmacia Musto
800 m
Farmacia Balcet
930 m
Farmacia Colognesi Podio
1,1 Km
Ospedali Ospedali
Cottolengo
1,9 Km
Supermercati Supermercati
Simply Market
750 m
Oviesse
750 m
Lidl
960 m
Carrefour Express
1,1 Km
Ipercoop Pinerolo
1,2 Km
Negozi Negozi
Le Spighe
250 m
Beccaria il fornaio del borgo
650 m
Negozi
840 m
Manhattan
1,1 Km
Pedussia
1,3 Km
Bar Bar
Bar del Corso
640 m
Bar
730 m
Caffè della Stazione
780 m
Caffè del Chiosco
860 m
Millibar
990 m
Ristoranti Ristoranti
Trattoria Rosa Bianca
390 m
Filodendro
860 m
Macumba
900 m
La Taverna degli Acaja
980 m
Mei Li Yuan
1,1 Km
Mostra tutto

Caratteristiche

Rif.:
61064557
Piano:
2 di 5 con ascensore (Piano medio)
Posti auto:
1
Balconi:
2
Terrazzi:
1
Camere da letto:
2
Mostra tutto
Prezzo Prezzo
€ 96.000
Rata mutuo Rata mutuo
€ 453 / mese
Spese annue Spese annue
€ 2.300
Proponi il tuo prezzoProponi il tuo prezzo

Classe Energetica

F
F
F
F
F
F
F
F
F
EP globale non rinnovabile:
159.23 kW h/m² anno
EP globale rinnovabile:
0.06 kW h/m² anno
EP invernale del fabbricato:
EP estiva del fabbricato:
Anno di costruzione:
1970
Riscaldamento:
Centralizzato
Tipo impianto:
A radiatori
Tipo alimentazione:
Metano

Ti interessa visionare l'immobile?

Fissa un appuntamento  Fissa un appuntamento

Richiedi informazioni

Clicca su Leggi per aprire l'informativa
* Questi campi sono obbligatori

Calcola il tuo mutuo

Semplice e senza impegno
Anticipo

( % )
Mutuo

( % )

pochi semplici passi

inserisci i tuoi dati
Questionario completato
Grazie per aver richiesto un appuntamento senza impegno con un nostro Consulente del Credito e Assicurativo.

Hai inserito correttamente tutti i dati necessari e a breve riceverai una e-mail con un link da convalidare per inviare i tuoi dati.
Affiliato
Studio Pinerolese Sas
Corso Torino, 280 10064 Pinerolo (TO)

Il nostro staff


  • Daniela Richiardone
    Affiliata

  • Francesca Cecere
    Coordinatrice

  • Vincenzo Pio D'Eredità
    Affiliato
Corso Torino, 280 10064 Pinerolo (TO)
Zona: Pinerolo-San Lazzaro-Macine-Serena/Olimpica-Riva-Baudenasca-Buriasco-Macello
Mostra su mappa
Orari: Dal Lunedì al Venerdì dalle 09.00 alle 12.30 e dalle 14.30 alle 19.00; Sabato orario continuato dalle 9.00 alle 17.00
Affiliato
Studio Pinerolese Sas
Corso Torino, 280 10064 Pinerolo (TO)

2026 Tecnocasa Franchising S.p.A. - P. IVA 08365160152 - Via Monte Bianco 60/A 20089 Rozzano (MI). Ogni agenzia ha un proprio titolare ed è autonoma. Privacy policy | Policy utilizzo | Cookie policy