Villa singola in vendita

Pinerolo, Strada paglieri - Baudenasca
€ 299.000
5 locali 5 locali
156 Mq 156 Mq
3 bagni 3 bagni

Villa singola in vendita

Pinerolo, Strada paglieri - Baudenasca

Descrizione annuncio

Proponiamo in vendita a Pinerolo nella frazione di Baudenasca in zona tranquilla e riservata, immersa nel verde ma a pochi minuti dai principali servizi una splendida villa singola libera su quattro lati, circondata da un curato giardino privato.

L’immobile, di recente costruzione e rifinito nel 2020, unisce comfort moderni, eleganza e funzionalità, sviluppandosi su più livelli con ambienti luminosi e accoglienti.

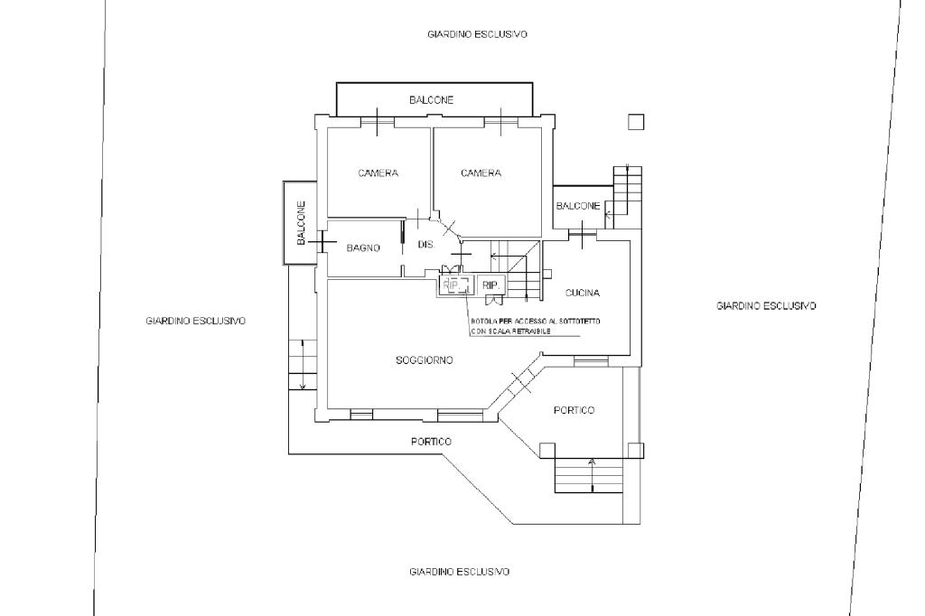
Al piano terra si apre una luminosa zona giorno con cucina a vista di generose dimensioni, perfetta per vivere momenti conviviali in famiglia o con gli amici.


Salendo al primo piano, la zona notte accoglie una camera matrimoniale, una cameretta ideale per i più piccoli o per uno studio e un bagno finestrato con box doccia dal design moderno.


Il secondo piano ospita una mansarda ricca di fascino, attualmente utilizzata come salotto, completa di bagno con doccia e una comoda camera da letto, perfetta come spazio per gli ospiti o area relax.


Il piano interrato sorprende con una spaziosa tavernetta dotata di cucina abitabile e un bagno finestrato, ideale per cene in compagnia o per creare un ambiente indipendente e versatile.

Questa villa offre tutti i comfort di ultima generazione: riscaldamento a pavimento, impianto di condizionamento, serramenti in legno con doppi vetri e zanzariere, impianto di videosorveglianza e antifurto per garantire sicurezza e benessere quotidiano.


Completano la proprietà due posti auto privati, accessibili tramite cancello carraio predisposto per apertura elettrica.

Un’abitazione ideale per chi cerca tranquillità, spazi generosi e comfort contemporaneo, senza rinunciare alla comodità dei servizi e alla bellezza della vita in un contesto residenziale sereno.

Mostra tutto

Nelle vicinanze

Farmacia Farmacia
Farmacia
1,4 Km
Mostra tutto

Caratteristiche

Rif.:
61132281
Piano:
Su più livelli di 3
Totale piani:
3
Posti auto:
2
Balconi:
1
Terrazzi:
1
Mostra tutto
Prezzo Prezzo
€ 299.000
Rata mutuo Rata mutuo
€ 1.373 / mese
Spese annue Spese annue
€ 0
Proponi il tuo prezzoProponi il tuo prezzo
Immobile valutato con T·Valuta

Classe Energetica

C
C
C
C
C
C
C
C
C
Anno di costruzione:
2008
Riscaldamento:
Autonomo
Tipo impianto:
A pavimento
Tipo alimentazione:
Metano

Ti interessa visionare l'immobile?

Fissa un appuntamento  Fissa un appuntamento

Richiedi informazioni

* Questi campi sono obbligatori

Calcola il tuo mutuo

Semplice e senza impegno
Anticipo

( % )
Mutuo

( % )

pochi semplici passi

inserisci i tuoi dati
Questionario completato
Grazie per aver richiesto un appuntamento senza impegno con un nostro Consulente del Credito e Assicurativo.

Hai inserito correttamente tutti i dati necessari e a breve riceverai una e-mail con un link da convalidare per inviare i tuoi dati.
Affiliato
Studio Pinerolese Sas
Corso Torino, 280 10064 Pinerolo (TO)

Il nostro staff


  • Daniela Richiardone
    Affiliata

  • Francesca Cecere
    Coordinatrice

  • Vincenzo Pio D'Eredità
    Affiliato
Corso Torino, 280 10064 Pinerolo (TO)
Zona: Pinerolo-San Lazzaro-Macine-Serena/Olimpica-Riva-Baudenasca-Buriasco-Macello
Mostra su mappa
Orari: Dal Lunedì al Venerdì dalle 09.00 alle 12.30 e dalle 14.30 alle 19.00; Sabato orario continuato dalle 9.00 alle 17.00
Affiliato
Studio Pinerolese Sas
Corso Torino, 280 10064 Pinerolo (TO)

2025 Tecnocasa Franchising S.p.A. - P. IVA 08365160152 - Via Monte Bianco 60/A 20089 Rozzano (MI). Ogni agenzia ha un proprio titolare ed è autonoma. Privacy policy | Policy utilizzo | Cookie policy